Cave House
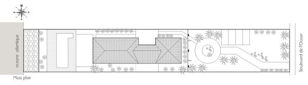
A long strip of land (15 by 88 metres) in the vacation-home beachside town, is the site for this five bedroom and five bathroom house. The local regulations require a 4 metre separation from the boundaries between each house leaving a 7metre wide construction space. The house consists of two 2-level volumes united by a smaller volume that contains the access, staircase and service areas, so as to leave the seaside facade for living and dining areas on the ground floor and for the master bedroom on the upper floor. The volume facing the street is separated from it by 38 metres. This area has a pergola car park and the garden. The windows for the remaining four bedrooms are on this façade. A basement level has the maid quarters, storage and wine cellar. The cool light blue facades are accentuated with white ledges, window- sills, terrace columns and banisters and the darker blue window shutters and doors. On the sea front a rectangular pool surrounded by a teak deck opens towards the beach below.










